закрыть
  • Главная
  • Компания
  • Вакансии
  • Услуги
    • Консалтинг
    • Проектирование
  • Наши работы
    • Жилые здания
    • Общественные здания
    • Производственные здания
  • Контакты
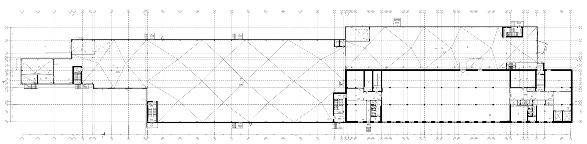
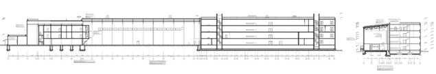
Реконструкция здания производственного назначения, под производственно-складское здание "Сурсил Мануфактура"
Проект реконструкции здания производственного назначения, расположенного по адресу: Московская область, городской округ Жуковский, город Жуковский, ул. Кооперативная 4Б, под производственно-складское здание «Сурсил Мануфактура». Существующее здание имеет 4 надземных этажа, а также подземный технический этаж. Проектируемый склад - одноэтажный, высота до низа конструкций 12.45 м. Пристраиваемая часть имеет неправильную форму в плане, размеры в осях 191,62х33,00 м. Проектом предусмотрено размещение складских площадей, а также административного блока.


Технико-экономические показатели:
Количество этажей здания - 5
Количество этажей подземных -1
Этажность здания - 4
Площадь застройки - 5 256,3 м2
Общая площадь здания - 11 047,43 м2
Строительный объем здания - 78 071,25 м3
Архитектурная высота здания - 18 340 м
image
Электронная почта
[email protected], [email protected]
Подписывайтесь на нас
VK
Telegram